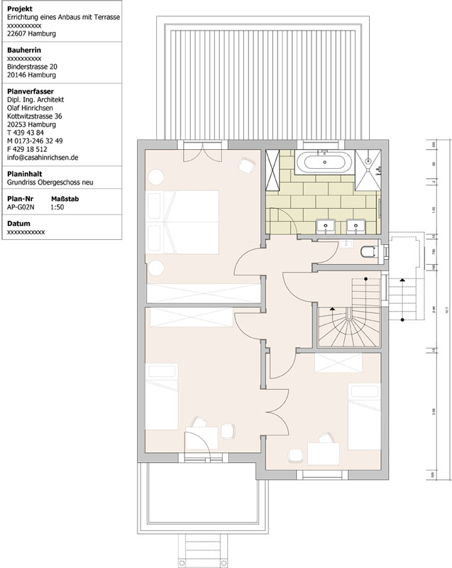
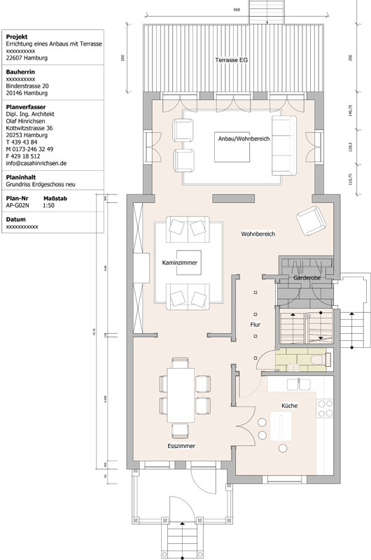
Haus E in Groß Flottbek

Sanierung eines gründerzeitlichen Stadthauses mit Anbau

Grundrissänderungen, Erweiterung der Wohnfläche, Terrassenflächen

Olaf Hinrichsen Architektur begleitete das Projekt in den Leistungsphasen 1-9

Bauherr: Privat

Zurück

Haus F Nienstedten
Haus F Nienstedten
Haus MR Barmbek
Haus MR Barmbek
Haus E Groß Flottbek
Haus E Groß Flottbek
Haus F Rahlstedt
Haus F Rahlstedt
Haus L Rotherbaum
Haus L Rotherbaum
Haus H Winterhude
Haus H Winterhude
Haus R Eppendorf
Haus R Eppendorf
Haus E Othmarschen
Haus E Othmarschen
Haus P Eimsbüttel
Haus P Eimsbüttel