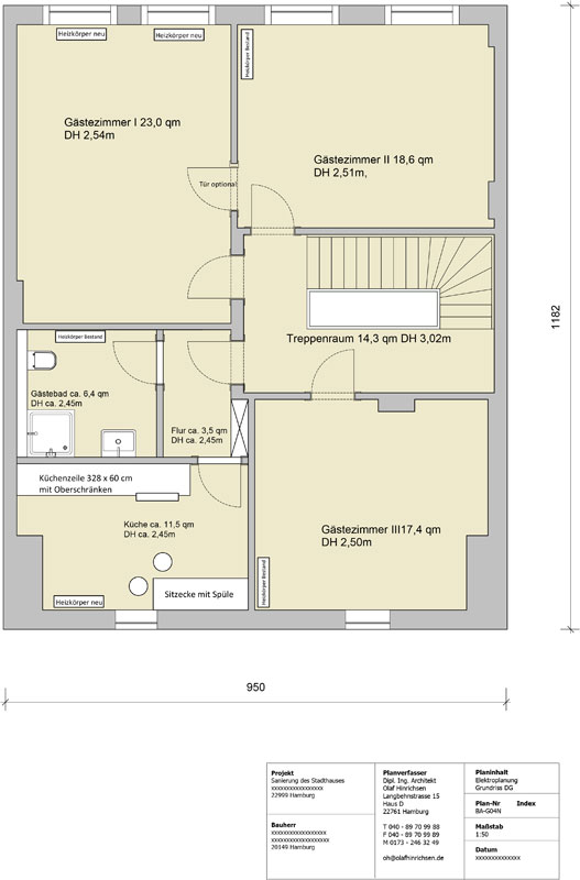
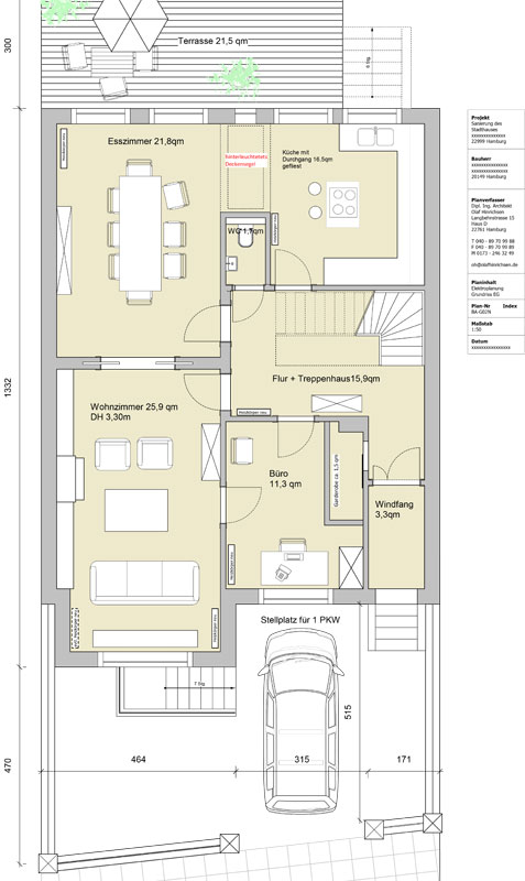
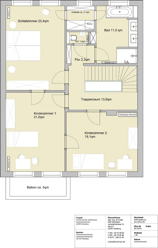
Haus P in Winterhude

Entkernung und Sanierung der denkmalgeschützten Stadtvilla, Baujahr 1902

Umbaumaßnahmen in enger Abstimmung mit dem Denkmalschutzamt

Hochwertiger Ausbau zu Wohnzwecken, Grundrissänderungen, Einbau von Bädern und Küchen

Olaf Hinrichsen Architektur begleitete das Projekt in den Leistungsphasen 1-9

Bauherr: Privat

Hier kann ein Subtext stehen
Hier kann ein Subtext stehen
Hier kann ein Subtext stehen
Hier kann ein Subtext stehen
Hier kann ein Subtext stehen
Hier kann ein Subtext stehen
Hier kann ein Subtext stehen
Hier kann ein Subtext stehen
Hier kann ein Subtext stehen
Hier kann ein Subtext stehen
Hier kann ein Subtext stehen
Hier kann ein Subtext stehen
Hier kann ein Subtext stehen
Hier kann ein Subtext stehen
Hier kann ein Subtext stehen
Hier kann ein Subtext stehen
Hier kann ein Subtext stehen
Hier kann ein Subtext stehen
Hier kann ein Subtext stehen
Hier kann ein Subtext stehen

Zurück

Haus F Nienstedten
Haus F Nienstedten
Haus MR Barmbek
Haus MR Barmbek
Haus E Groß Flottbek
Haus E Groß Flottbek
Haus F Rahlstedt
Haus F Rahlstedt
Haus L Rotherbaum
Haus L Rotherbaum
Haus H Winterhude
Haus H Winterhude
Haus R Eppendorf
Haus R Eppendorf
Haus E Othmarschen
Haus E Othmarschen
Haus P Eimsbüttel
Haus P Eimsbüttel